夢を形に。終の棲家リフォーム

間取り変更が限られたRC造の中でインテリアの力を発揮

2016年3月~9月

ご依頼の内容

リフォームコンセプト

2つのイメージカラー、重厚感のあるダークブラウンと温かなホワイトシャビーで御夫婦それぞれの個性を表し 旅するような空間へ 間取り変更が限られたRC造の中でインテリアの力を発揮。


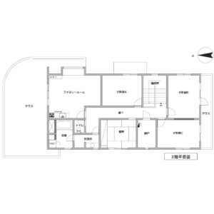
Before 1階2階共、同じ間取りが重なる2階建て。子供が独立し活用されなくなった2階へ生活の拠点を変える。


After 堅固な壁の中で唯一ブロック造の壁を撤去し、個室2間を3方向から陽がそそぐ明るいLDKへ。

関連ワード:

施工事例のカテゴリー

セカンドライフこだわりリフォーム
古民家再生リフォーム
マンションリフォーム
オフィス・民宿等リフォーム
二世帯住宅リフォーム
新築(戸建て住宅・グループホームなど)

ソロモン流
おり座
HunterDouglas
大改造!!劇的ビフォーアフター
江口惠津子ブログ
ヴェルディッシモFacebook

セカンドオピニオン実施中

PanaHome江口さんのリフォーム講座
我が家のスローリード・リフォーム
模様替えのきほん

margherita
インテリア産業協会
JAFICA