実りをよろこぶ家

2012年3月~6月 施工

ご依頼の内容

リフォームコンセプト

40年の歳月を経た力ある柱・梁にカンナが入り芳しい木の香りで再び包まれる。 価値ある菜園の実りを眺め暮らす家に。


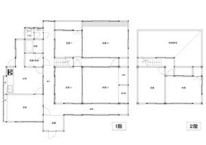
Before


After

関連ワード:

施工事例のカテゴリー

セカンドライフこだわりリフォーム
古民家再生リフォーム
マンションリフォーム
オフィス・民宿等リフォーム
二世帯住宅リフォーム
新築(戸建て住宅・グループホームなど)

ソロモン流
おり座
HunterDouglas
大改造!!劇的ビフォーアフター
江口惠津子ブログ
ヴェルディッシモFacebook

セカンドオピニオン実施中

PanaHome江口さんのリフォーム講座
我が家のスローリード・リフォーム
模様替えのきほん

margherita
インテリア産業協会
JAFICA